マンション ダイヤパレス向山緑地
所在地
豊橋市前田南町2丁目
1,850万円
85.77m²
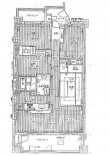
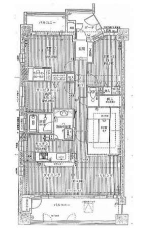
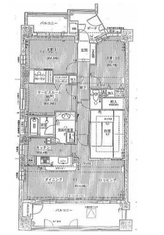
4LDK
角部屋!
閑静な住宅街 !
・ミニストップ 豊橋前田南町店まで約550m(徒歩約8分)
・ココカラファイン つつじが丘店まで約800m(徒歩約11分)
・スーパーマーケットバロー豊橋店まで約300m(徒歩約4分)
・豊橋郵便局まで約1600m(徒歩約23分)
・豊橋信用金庫 小池支店まで約1200m(徒歩約18分)
物件概要
- 交通
-
東海道線 豊橋駅
- 専有面積
- 85.77㎡
- バルコニー
-
7.50㎡ (南側)
面積不明 - 所在階/階数
- 1unit.floor/7unit.floor
- 築年数
-
2001年
(平成13)
10月
築24年 - 建ぺい率
- 容積率
- 土地権利
- 所有権
- 構造および階数
- RC(鉄筋コンクリート) 造 地上7階建
- 総戸数
- 小学校区
- 松山 ( 1507m )
- 中学校区
- 中部 ( 1829m )
- 地目
- 現況
- 居住中
- 引渡時期
- 相談
- 駐車場
- 空有
- 駐車場月額
- 5,500円/月
- 管理形態
- 全部委託
- 管理方式
- 管理会社
- 株式会社東急コミュニティー
- 管理費
- 14,400円
- 修繕積立費
- 18,000円
- 上水道
- 下水道
- ガス
- 都市ガス
- 都市計画
- 用途地域
- 2種住居
- 設備・条件
- システムキッチン、カウンターキッチン、モニタ付インターホン、ウォークインクローゼット、エレベーター
- 備考
- 取引態様
- 仲介

