中古一戸建て 豊橋市船渡町字高打場
所在地
豊橋市船渡町字高打場
1,250万円
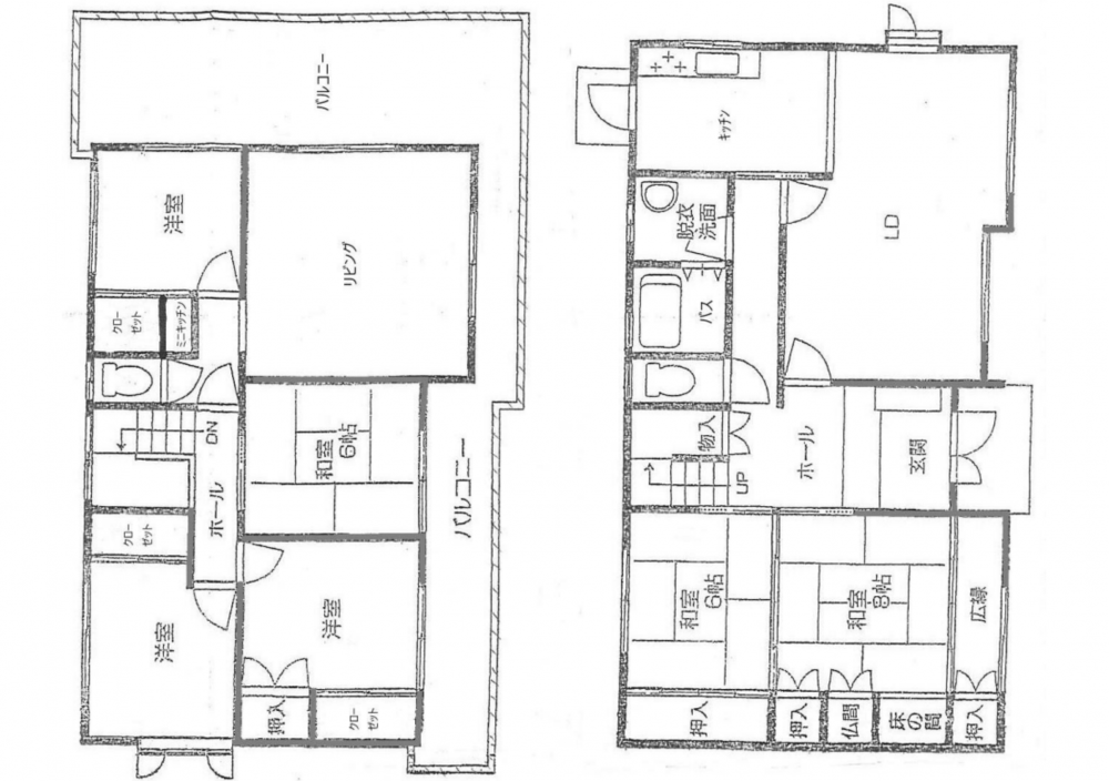
54.13坪
7LDK
駐車場3台可能です!
マックスバリュ豊橋南店まで約3370m(徒歩約42分)
グリーンセンター磯部店まで約2680m(徒歩約33分)
ファミリーマート豊橋船渡店まで約290m(徒歩約4分)
スギ薬局豊橋南店まで約3420m(徒歩約43分)
豊橋船渡郵便局まで約270m(徒歩約3分)
医療法人澄心会豊橋ハートセンターまで約1128m(徒歩約14分)
物件概要
- 交通
-
バス停船渡 まで 徒歩5分
- 接道状況
- 南西側 公道2.8m 間口約16.4m
- 土地面積
- 公簿 290.87㎡ (87.98坪)
- 建物面積
- 178.96㎡ (54.13坪)
- 築年数
-
1992年
(平成4)
9月
築33年 - 建ぺい率
- 60%
- 容積率
- 200%
- 土地権利
- 所有権
- 構造および階数
- 軽量鉄骨造 地上2階建
- 小学校区
- 大崎 ( 765m )
- 中学校区
- 南陽 ( 2368m )
- 私道負担
- 地目
- 宅地
- 現況
- 空
- 引渡時期
- 相談
- 駐車場
- 有
- 上水道
- 下水道
- ガス
- 都市計画
- 市街化調整区域
- 用途地域
- 設備・条件
- 備考
- 取引態様
- 仲介

