新築一戸建て 豊橋市飯村町字東川
所在地
豊橋市飯村町字東川
3,080万円
32.06坪
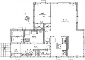
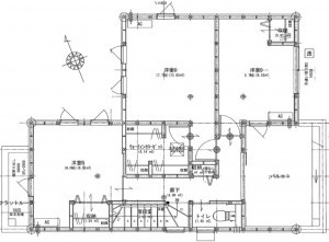
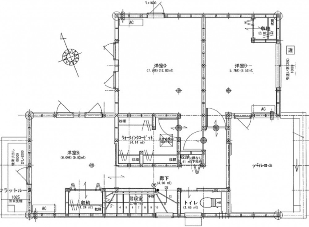
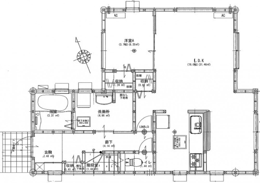
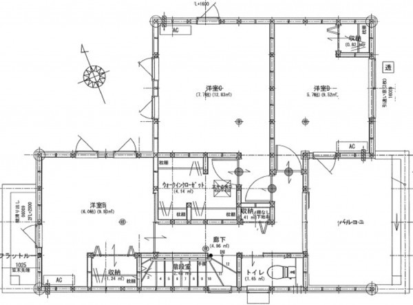
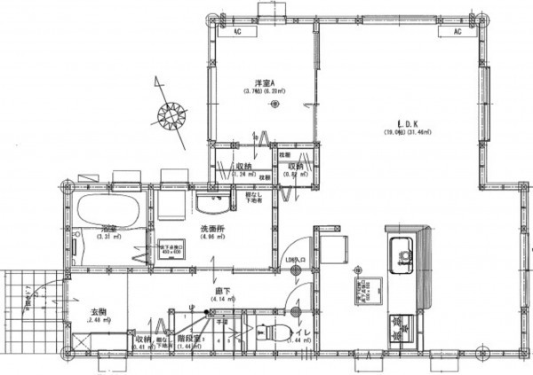
4LDK
・飯村小学校近くの閑静な住宅街
・セブンイレブン豊橋飯村南4丁目店まで約350m(徒歩約5分)
・ドミー飯村店まで約550m(徒歩約7分)
・スギ薬局飯村店まで約700m(徒歩約10分)
・豊橋信用金庫岩西支店まで約450m(徒歩約7分)
・豊橋岩屋郵便局まで約220m(徒歩約3分)
物件概要
- 交通
-
東海道線 二川駅 まで 徒歩34分
- 接道状況
- 土地面積
- 160.51㎡ (48.55坪)
- 建物面積
- 106.00㎡ (32.06坪)
- 築年数
- 2026年 (令和8) 5月 完成予定
- 建ぺい率
- 60%
- 容積率
- 100%
- 土地権利
- 所有権
- 構造および階数
- 木造 地上2階建
- 小学校区
- 飯村 ( 250m )
- 中学校区
- 東部 ( 1100m )
- 私道負担
- 地目
- 宅地
- 現況
- 建築中
- 引渡時期
- 予定 2026年5月
- 駐車場
- 上水道
- 下水道
- ガス
- 都市計画
- 市街化区域
- 用途地域
- 1種低層
- 建築確認番号
- 第KS125-0420-61100号
- 設備・条件
- システムキッチン、シャンプードレッサー、浴室乾燥機
- 備考
- 取引態様
- 仲介

