中古一戸建て 豊橋市三ノ輪町字本興寺
所在地
豊橋市三ノ輪町字本興寺
1,700万円
46.08坪
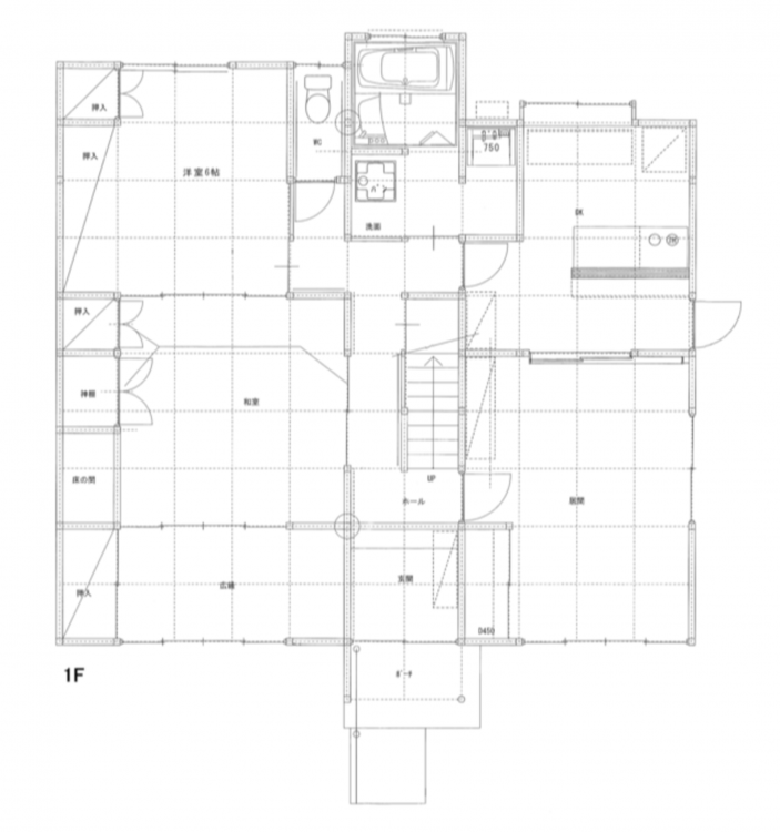
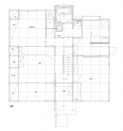
6LDK
6LDK!
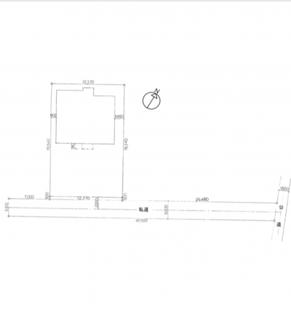
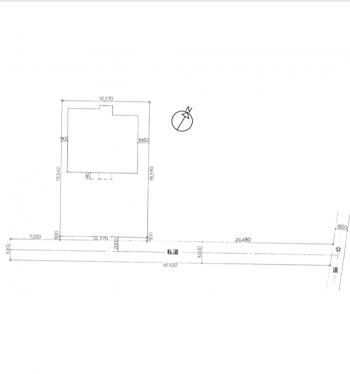
セットバック要
ビオ・あつみエピスリーまで約350m(徒歩約5分)
ファミリーマート豊橋向山店まで約650m(徒歩約9分)
はなのきクリニックまで約450m(徒歩約6分)
豊橋信用金庫三ノ輪支店まで約800m(徒歩約12分)
豊橋三ノ輪郵便局まで約800m(徒歩約11分)
物件概要
- 交通
-
豊橋市内線 運動公園前駅 まで 徒歩22分
- 接道状況
- 南側 私道3m 間口約12.3m
- 土地面積
- 公簿 231.55㎡ (70.04坪)
- 建物面積
- 152.36㎡ (46.08坪)
- 築年数
-
1984年
(昭和59)
11月
築41年 - 建ぺい率
- 60%
- 容積率
- 200%
- 土地権利
- 所有権
- 構造および階数
- 木造 地上2階建
- 小学校区
- つつじが丘 ( 1500m )
- 中学校区
- 東部 ( 1700m )
- 私道負担
- 有 126.79 ㎡
- 地目
- 宅地
- 現況
- 空
- 引渡時期
- 相談
- 駐車場
- 有
- 上水道
- 下水道
- ガス
- 都市計画
- 市街化区域
- 用途地域
- 1種住居
- 設備・条件
- 備考
- 取引態様
- 仲介

