中古一戸建て 豊橋市大岩町字佃
所在地
豊橋市大岩町字佃
7,275万円
45.14坪
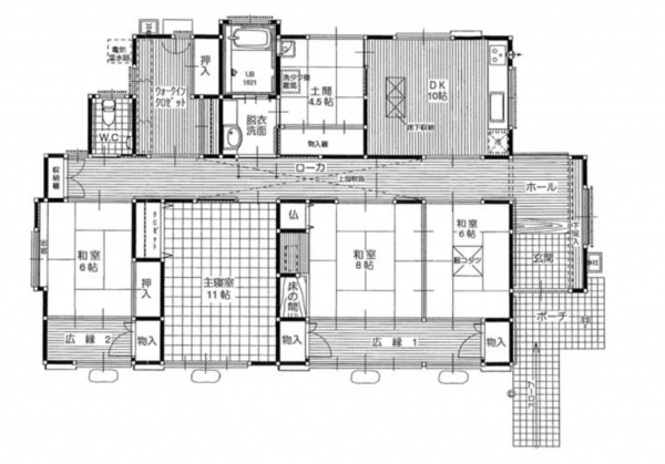
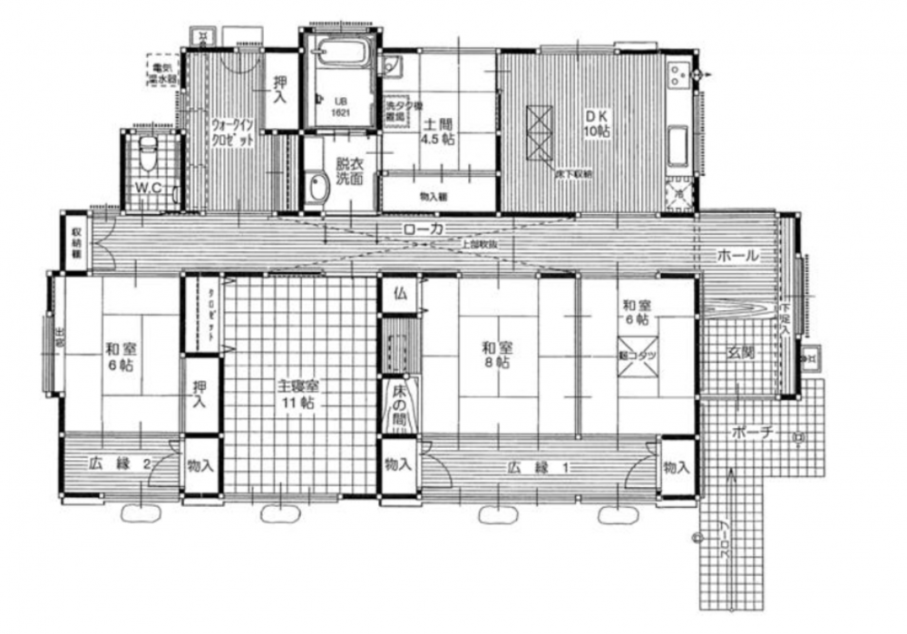
4DK
閑静な住宅街です。
・セブンイレブン 豊橋二川南店まで約950m(徒歩約13分)
・クスリのアオキ 大岩店まで約1100m(徒歩約15分)
・ヤマナカ 二川店まで約950m(徒歩約13分)
・二川郵便局まで約1500m(徒歩約21分)
・豊橋信用金庫 二川支店まで約1800m(徒歩約25分)
物件概要
- 交通
-
東海道線 二川駅 まで 徒歩9分
- 接道状況
- 南側
- 土地面積
- 公簿 829.80㎡ (251.01坪)
- 建物面積
- 149.25㎡ (45.14坪)
- 築年数
-
2002年
(平成14)
8月
築23年 - 建ぺい率
- 60%
- 容積率
- 200%
- 土地権利
- 所有権
- 構造および階数
- 木造 地上1階建
- 小学校区
- 二川 ( 1600m )
- 中学校区
- 二川 ( 2100m )
- 私道負担
- 地目
- 田
- 現況
- 居住中
- 引渡時期
- 期日指定
- 駐車場
- 有
- 上水道
- 公共
- 下水道
- 公共
- ガス
- 都市ガス
- 都市計画
- 市街化区域
- 用途地域
- 工業
- 設備・条件
- 備考
- 取引態様
- 仲介

