中古一戸建て 豊橋市向山西町
所在地
豊橋市向山西町
2,650万円
29.09坪
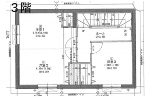
3SLDK
〇向山小学校まで徒歩1分♪
・セブン-イレブン 豊橋老松町店まで約500m(徒歩約8分)
・ドラッグスギヤマ 舟原店まで約650m(徒歩約9分)
・スーパーマーケットバロー豊橋店まで約1500m(徒歩約21分)
・豊橋郵便局まで約1400m(徒歩約20分)
・豊橋信用金庫 東田支店まで約1100m(徒歩約16分)
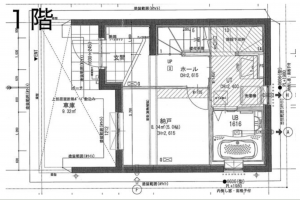
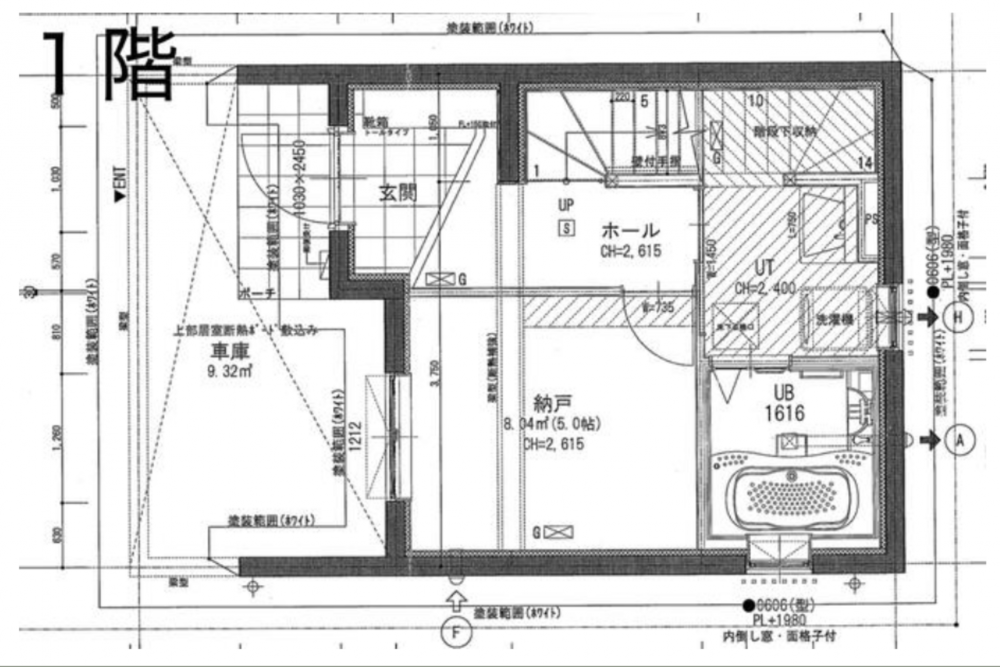
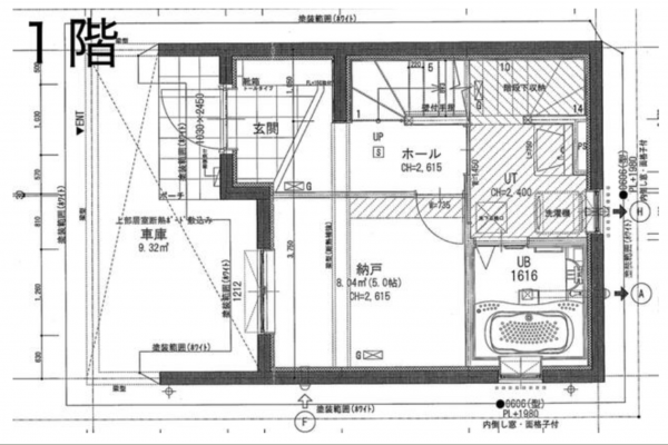
物件概要
- 交通
-
豊橋市内線 東田坂上駅 まで 徒歩10分
- 接道状況
- 土地面積
- 65.94㎡ (19.94坪)
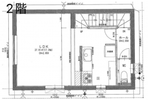
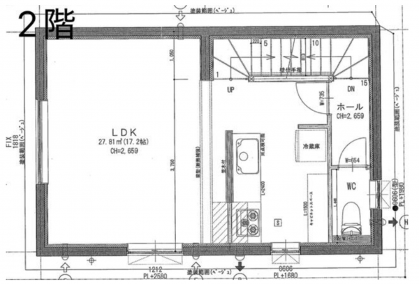
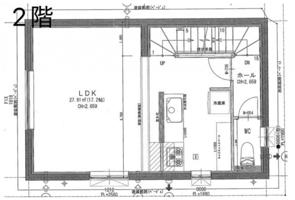
- 建物面積
- 96.17㎡ (29.09坪)
- 築年数
-
2015年
(平成27)
3月
築11年 - 建ぺい率
- 60%
- 容積率
- 200%
- 土地権利
- 所有権
- 構造および階数
- 鉄骨造 地上3階建
- 小学校区
- 向山 ( 59m )
- 中学校区
- 中部 ( 650m )
- 私道負担
- 地目
- 宅地
- 現況
- 空
- 引渡時期
- 相談
- 駐車場
- 上水道
- 公共
- 下水道
- 公共
- ガス
- 都市計画
- 市街化区域
- 用途地域
- 1種住居
- 設備・条件
- カウンターキッチン、洗浄便座
- 備考
- 取引態様
- 仲介

